ГП Евро-900-500

Шумоглушитель прямоугольного
сечения (пластинчатого типа)


ПРЕИМУЩЕСТВА

  • Высокая эффективность шумоглушения
  • Наличие обтекателей
  • Оцинкованный корпус 
  • Отсутствие швов и сварки в конструкции корпуса
  • Шумопоглащающий материал Rockwool
  • Полное соответствие европейским аналогам
  • Универсальные монтажные отверстия

       Cкачать раздел

Распечатать

ПРИМЕНЕНИЕ

Шумоглушители ГП Евро предназначены для снижения аэродинамического шума, создаваемого вентиляторами, кондиционерами, воздухорегулирующими устройствами, а также шума, возникающего в элементах воздуховодов.

КОНСТРУКЦИЯ

ГП Евро изготавливается   из оцинкованной стали в соответствии с ТУ   4863-038-15185548-2009. В качестве шумопоглощающего материала используется плита из каменной ваты с односторонним покрытием стеклохолстом. Допустимая температура перемещаемого воздуха от -40 С до +80 С.

МОНТАЖ

Шумоглушители ГП Евро предназначены для установки в прямоугольных воздуховодах внутри помещений. используются в качестве элементов приточных и вытяжных систем.
Преимущественно они устанавливаются между вентиляторами и магистральными воздуховодами. В вытяжных системах механической вентиляции применяются как для защиты от шума обслуживаемых помещений, так и для снижения шума, поступающего от вентиляторов наружу.
 Монтируются вне зависимости от пространственной ориентации, сохраняя работоспособность. Перед шумоглушителем рекомендуется устанавливать воздуховод длиной не менее 1-1,5 м. для выравнивания скорости воздуха по сечению воздуховода.
Для значительного снижения уровня шума можно использовать несколько шумоглушителей, установленных друг за другом.

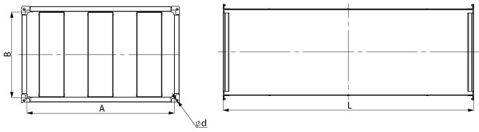
Структура обозначения шумоглушителя ГП ЕВРО  в документации


  1. ГП – шумоглушитель пластинчатый для прямоугольных каналов
  2. евро – вариант исполнения
  3. 400 – ширина (А), мм
  4. 200h – высота (B), мм
  5. 1060 – длина (L), мм

Предприятие оставляет за собой право вносить конструктивные изменения, не влияющие на качество и технические характеристики изделия.

Обозначение

Кол-во пластин

Толщина пластин

А

B

L

d

Масса, кг

ГП Евро-900-500

6

100

900

500

1060

11

80




ШУМОПОДАВЛЕНИЕ, дБ/ ПОЛОСЫ ЧАСТОТ, Гц


Обозначение

Эффективность снижения шума по октановым полосам в диапазонах частот (Гц)

63

125

250

500

1000

2000

4000

8000

ГП Евро-900-500

4

8

18

28

44

49

37

29



Шумоглушители - ГП Евро-900-500

ПРИМЕНЕНИЕ Шумоглушители ГП Евро предназначены для снижения аэродинамического шума, создаваемого вентиляторами, кондиционерами, воздухорегулирующими устройствами, а также шума, возникающего в элементах воздуховодов. КОНСТРУКЦИЯ ГП Евро изготавливается   из оцинкованной стали в соответствии с ТУ   4863-038-15185548-2009. В качестве шумопоглощающего материала используется плита из каменной ваты с односторонним покрытием стеклохолстом. Допустимая температура перемещаемого воздуха от -40 С до +80 С. МОНТАЖ Шумоглушители ГП Евро предназначены для установки в прямоугольных воздуховодах внутри помещений. используются в качестве элементов приточных и вытяжных систем. Преимущественно они устанавливаются между вентиляторами и магистральными воздуховодами. В вытяжных системах механической вентиляции применяются как для защиты от шума обслуживаемых помещений, так и для снижения шума, поступающего от вентиляторов наружу.  Монтируются вне зависимости от пространственной ориентации, сохраняя работоспособность. Перед шумоглушителем рекомендуется устанавливать воздуховод длиной не менее 1-1,5 м. для выравнивания скорости воздуха по сечению воздуховода. Для значительного снижения уровня шума можно использовать несколько шумоглушителей, установленных друг за другом. Структура обозначения шумоглушителя ГП ЕВРО  в документации ГП – шумоглушитель пластинчатый для прямоугольных каналов евро – вариант исполнения 400 – ширина (А), мм 200h – высота (B), мм 1060 – длина (L), мм Предприятие оставляет за собой право вносить конструктивные изменения, не влияющие на качество и технические характеристики изделия.

Шумоглушители - ГП Евро-900-500
0.00

Поддержка

Каталог Системы вентиляции

Получить наиболее подробную
информацию о продукции Вы всегда
можете в нашем каталоге.

Скачать

Единый прайс-лист

В нашем прайс-листе вы найдете
самые актуальные цены на всю
предлагаемую нами продукцию.

Скачать

Сертификаты на продукцию

Вся продукция завода полностью
сертифицирована и прошла все
необходимые испытания.

Перейти

Монтаж вентиляции
Аэродинамические испытания
Электрофизические измерения

Вентиляторы :: Воздуховоды :: Клапаны

+375 (29) 187-67-00

+375 (232) 53-54-55

часы работы: 9:00—18:00

Яндекс.Метрика