ПРЕИМУЩЕСТВА
- Удобство монтажа на плоской кровле
- Прочная рама и герметичный оцинкованный корпус
- Надежность крепления крышных вентиляторов ВКР-М и ВКР-М-ДУ
Распечатать
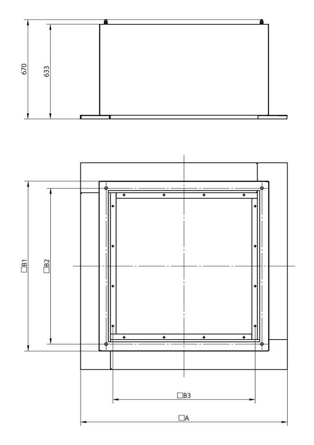
Монтажный стакан
(для вентиляторов ВКР-М, ВКР-М-ДУ)
Типоразмерный ряд
Стаканы монтажные серии СТ-200 (без термоизоляции) предназначены для применения в проекте строительных конструкций на любом типе кровли зданий. Стаканы СТ-200 предназначены для установки на горизонтальной поверхности совместно с вытяжными крышными вентиляторами ВКР-М. При обеспечении надлежащей степени огнестойкости и внешней теплоизоляции, сочетается с вентиляторами дымоудаления ВКР-М-ДУ.
Стаканы СТ-200 применяются в стационарных системах вытяжной вентиляции для работы без сети или с короткой сетью воздуховодов.
Конструкция Стакана СТ-200 представляет собой сборную конструкцию, состоящую из основания из оцинкованной стали, прочной комбинированной рамы окрашенной порошковой краской и герметичной оцинкованной внешней облицовки. Термоизоляция в поставке не предусмотрена и может быть выполнена по месту, в составе примыкающего кровельного сэндвича.
Высота монтажного стакана СТ-200- 633 мм, рассчитана на толщину снегового покрова не более 500 мм (с учетом толщины кровельного сэндвича).
Структура обозначения стаканов монтажных СТ-200 в документации

Предприятие оставляет за собой право вносить конструктивные изменения, не влияющие на качество и технические характеристики изделия.
|
Наименование |
Типоразмер ВКР-М, ВКР-М-ДУ |
А |
В1 |
В2 |
В3 |
Масса, кг |
|
СТ-200-5,0-С |
5,0 |
960 |
714 |
620 |
516 |
80 |
|
СТ-200-5,6-С |
5,6 |
1010 |
764 |
670 |
566 |
85 |
|
СТ-200-6,3-С |
6,3 |
1060 |
814 |
720 |
616 |
90 |
|
СТ-200-7,1-С |
7,1 |
1120 |
874 |
780 |
676 |
95 |
|
СТ-200-8,0-С |
8,0 |
1220 |
974 |
880 |
776 |
105 |
|
СТ-200-9,0-С |
9,0 |
1290 |
1044 |
950 |
846 |
110 |
|
СТ-200-10,0-С |
10,0 |
1380 |
1134 |
1040 |
936 |
120 |

Поддержка
Каталог Системы вентиляции
Получить наиболее подробную
информацию о продукции Вы всегда
можете в нашем каталоге.
Единый прайс-лист
В нашем прайс-листе вы найдете
самые актуальные цены на всю
предлагаемую нами продукцию.
Сертификаты на продукцию
Вся продукция завода полностью
сертифицирована и прошла все
необходимые испытания.