ВКР-М-10,0

Вентилятор Крышный серии-М
(с вертикальным выбросом)

ПРЕИМУЩЕСТВА

  • Вертикальный выброс воздуха
  • Оцинкованный корпус
  • Облегченный конструктив
  • Высокое КПД

       Cкачать раздел

Распечатать

ОПИСАНИЕ


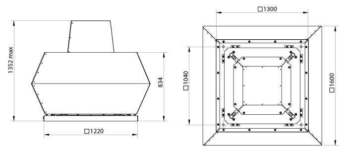
ВКР-М имеют вертикальный выброс воздуха вверх, что позволяет устанавливать вентилятор на кровле в непосредственной близости от других приточно-вытяжных систем.

КОНСТРУКЦИЯ


Вентиляторы крышные представляют собой радиальные вентиляторы среднего давления, одностороннего всасывания.
В вентиляторе ВКР- М используются модернизированные рабочие колесами с назад загнутыми лопатками с повышенным КПД до 65%.
Корпус и защитный колпак изготовлены из оцинкованной стали, что делает вентилятор устойчивым к атмосферным осадкам.
Благодаря частично разборной конструкции корпуса вентиляторы ВКР-М позволяют существенно экономить время и деньги при сервисном обслуживании.
На вентиляторе установлена защитная сетка, препятствующая попаданию в вентиляционный канал мелких частиц.

ИСПОЛНЕНИЕ


Общепромышленное (ОН)

НАЗНАЧЕНИЕ И РЕЖИМ РАБОТЫ


Системы вентиляции –режим работ до 80 °C.

ГАРАНТИЯ – 18 МЕСЯЦЕВ



 

 

ВКР-10,0 11,0/720

ВКР-10,0 18,5/960

Напряжение/Частота

В/50 Гц

380

380

Фазность

~

3

3

Мощность

кВт

11,0

18,5

Частота вращения

об/мин

720

960

Производительность

тыс. м3/час

40 000

60 000

Полное давление

Па

610

1150

Макс. температура перемещаемого воздуха

°C

80

80

Класс защиты двигателя

 

IP54

IP54

Электронное реле защиты двигателя

Позисторное

ТР 220 РТС

ТР 220 РТС

Масса

кг

430

470

Регулятор скорости электронный

Частотный

ATV212HD11N4

ATV212HD18N4

об/мин

 

Октавные уровни звуковой мощности, LwA, дБ в полосах среднегеометрических частот, Гц

Общ.

125

250

500

1k

2k

4k

8k

720

LwA, дБ(А)

96

91

99

92

90

88

80

71

960

LwA, дБ(А)

103

96

103

102

99

94

88

87


Акустическая характеристика измерена на стороне нагнетания при номинальном режиме работы вентилятора. На стороне всасывания уровень звуковой мощности на 3 дБ ниже уровня, приведенного в таблице.
На границах рабочего участка аэродинамической характеристики уровень звуковой мощности на 3 дБ выше уровня звуковой мощности, соответствующего номинальному режиму работы вентилятора.

Крышные вентиляторы - ВКР-М-10,0

ОПИСАНИЕВКР-М имеют вертикальный выброс воздуха вверх, что позволяет устанавливать вентилятор на кровле в непосредственной близости от других приточно-вытяжных систем.КОНСТРУКЦИЯВентиляторы крышные представляют собой радиальные вентиляторы среднего давления, одностороннего всасывания.В вентиляторе ВКР- М используются модернизированные рабочие колесами с назад загнутыми лопатками с повышенным КПД до 65%.Корпус и защитный колпак изготовлены из оцинкованной стали, что делает вентилятор устойчивым к атмосферным осадкам.Благодаря частично разборной конструкции корпуса вентиляторы ВКР-М позволяют существенно экономить время и деньги при сервисном обслуживании.На вентиляторе установлена защитная сетка, препятствующая попаданию в вентиляционный канал мелких частиц.ИСПОЛНЕНИЕОбщепромышленное (ОН)НАЗНАЧЕНИЕ И РЕЖИМ РАБОТЫСистемы вентиляции –режим работ до 80 °C.ГАРАНТИЯ – 18 МЕСЯЦЕВ

Крышные вентиляторы - ВКР-М-10,0
0.00

С этим вентилятором покупают!

Поддержка

Каталог Системы вентиляции

Получить наиболее подробную
информацию о продукции Вы всегда
можете в нашем каталоге.

Скачать

Единый прайс-лист

В нашем прайс-листе вы найдете
самые актуальные цены на всю
предлагаемую нами продукцию.

Скачать

Сертификаты на продукцию

Вся продукция завода полностью
сертифицирована и прошла все
необходимые испытания.

Перейти

Монтаж вентиляции
Аэродинамические испытания
Электрофизические измерения

Вентиляторы :: Воздуховоды :: Клапаны

+375 (29) 187-67-00

+375 (232) 53-54-55

часы работы: 9:00—18:00

Яндекс.Метрика