ВКР-М-5,6

Вентилятор Крышный серии-М
(с вертикальным выбросом)

ПРЕИМУЩЕСТВА

  • Вертикальный выброс воздуха
  • Оцинкованный корпус
  • Облегченный конструктив
  • Высокое КПД

       Cкачать раздел

Распечатать

ОПИСАНИЕ


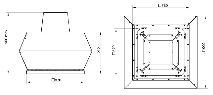
ВКР-М имеют вертикальный выброс воздуха вверх, что позволяет устанавливать вентилятор на кровле в непосредственной близости от других приточно-вытяжных систем.

КОНСТРУКЦИЯ


Вентиляторы крышные представляют собой радиальные вентиляторы среднего давления, одностороннего всасывания.
В вентиляторе ВКР- М используются модернизированные рабочие колесами с назад загнутыми лопатками с повышенным КПД до 65%.
Корпус и защитный колпак изготовлены из оцинкованной стали, что делает вентилятор устойчивым к атмосферным осадкам.
Благодаря частично разборной конструкции корпуса вентиляторы ВКР-М позволяют существенно экономить время и деньги при сервисном обслуживании.
На вентиляторе установлена защитная сетка, препятствующая попаданию в вентиляционный канал мелких частиц.

ИСПОЛНЕНИЕ


Общепромышленное (ОН)

НАЗНАЧЕНИЕ И РЕЖИМ РАБОТЫ


Системы вентиляции –режим работ до 80 °C.

ГАРАНТИЯ – 18 МЕСЯЦЕВ



 

 

ВКР-5,6 2,2/1000

ВКР-5,6 3,0/1500

Напряжение/Частота

В/50 Гц

~380/50

~380/50

Фазность

~

3

3

Мощность

кВт

2,2

3,0

Частота вращения

об/мин

960

1435

Производительность

тыс. м3/ч

8 000

11 000

Полное давление

Па

490

1030

Макс. температура перемещаемого воздуха

°C

80

80

Класс защиты двигателя

-

IP54

IP54

Масса

кг

160

150

Регулятор скорости электронный

Частотный

ATV212HU22N4

ATV212HU55N4

об/мин

 

Октавные уровни звуковой мощности, LwA, дБ в полосах среднегеометрических частот, Гц

Общ.

125

250

500

1k

2k

4k

8k

960

LwA, дБ(А)

88

85

82

82

78

64

56

86

1435

LwA, дБ(А)

97

95

92

91

88

74

65

96


Акустическая характеристика измерена на стороне нагнетания при номинальном режиме работы вентилятора. На стороне всасывания уровень звуковой мощности на 3 дБ ниже уровня, приведенного в таблице.
На границах рабочего участка аэродинамической характеристики уровень звуковой мощности на 3 дБ выше уровня звуковой мощности, соответствующего номинальному режиму работы вентилятора.

Крышные вентиляторы - ВКР-М-5,6

ОПИСАНИЕВКР-М имеют вертикальный выброс воздуха вверх, что позволяет устанавливать вентилятор на кровле в непосредственной близости от других приточно-вытяжных систем.КОНСТРУКЦИЯВентиляторы крышные представляют собой радиальные вентиляторы среднего давления, одностороннего всасывания.В вентиляторе ВКР- М используются модернизированные рабочие колесами с назад загнутыми лопатками с повышенным КПД до 65%.Корпус и защитный колпак изготовлены из оцинкованной стали, что делает вентилятор устойчивым к атмосферным осадкам.Благодаря частично разборной конструкции корпуса вентиляторы ВКР-М позволяют существенно экономить время и деньги при сервисном обслуживании.На вентиляторе установлена защитная сетка, препятствующая попаданию в вентиляционный канал мелких частиц.ИСПОЛНЕНИЕОбщепромышленное (ОН)НАЗНАЧЕНИЕ И РЕЖИМ РАБОТЫСистемы вентиляции –режим работ до 80 °C.ГАРАНТИЯ – 18 МЕСЯЦЕВ

Крышные вентиляторы - ВКР-М-5,6
0.00

С этим вентилятором покупают!

Поддержка

Каталог Системы вентиляции

Получить наиболее подробную
информацию о продукции Вы всегда
можете в нашем каталоге.

Скачать

Единый прайс-лист

В нашем прайс-листе вы найдете
самые актуальные цены на всю
предлагаемую нами продукцию.

Скачать

Сертификаты на продукцию

Вся продукция завода полностью
сертифицирована и прошла все
необходимые испытания.

Перейти

Монтаж вентиляции
Аэродинамические испытания
Электрофизические измерения

Вентиляторы :: Воздуховоды :: Клапаны

+375 (29) 187-67-00

+375 (232) 53-54-55

часы работы: 9:00—18:00

Яндекс.Метрика